jc聚彩

HD单机除尘器-HD系列单机除尘器技术性能表-宏大除尘设备

||资讯| 网站地图
宏大除尘设备,除尘器,除尘配件
热门点击: 布袋除尘器|气箱除尘器|脉冲除尘器|旋风除尘器|单机除尘器|行业除尘器|除尘器配件|除尘布袋|
HD单机除尘器
HD系列单机除尘器技术性能表
HD单机除尘器可广泛用于水泥行业,铸造工业,陶瓷工业,玻璃工业,砂轮制造,化工制品,机械加工,等行业除尘。
产地:河北省>泊头市
供应商:泊头市宏大除尘设备制造有限公司
技术咨询热线:
13785759289

HD系列单机除尘器技术性能表详细内容介绍information

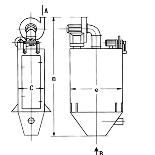
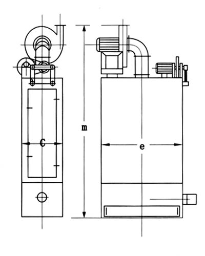
 HD系列单机除尘器

简介
HD系列单机除尘器是专为水泥厂库顶,库底.皮带输送及局部尘源除尘而设计的.也可以用于其它行业的局部尘源除尘用.具有体积小处理风量大,结构紧凑.使用方便可靠等优点,从除尘器上处理下来的粉尘可直接排除入仓内.亦可直接落在皮带上.含尘气体由除尘器下部进入除尘器,经滤袋过滤后,清洁空气由引风机排出.除尘器工作一段时间后,滤袋上的粉尘逐渐斩增多致使使滤袋阴力上升,需要进行清灰,清灰完毕后,除尘器又正常进行工作。 
单机除尘器 
 

单机除尘器技术性能


型号规格
生能
HD8924
(ABC)
HD8923
(ABC)
HD8948
(ABC)
HD8956
(ABC)
HD8964
(ABC)
HD8964L
(ABC)
HD8980
(ABC)
处理风量(m3/h)
1000-1500
1500-2000
2000-3000
3000-3480
3480-4200
4200-5200
5200-6000
除尘器阻力(Pa)
1200
1200
1200
1200
1200
1200
1200
过滤面积(m2)
10
14.48
20
25
29.0
35
40
过滤风速(m/min)
< 2.5
除尘效率(%)
> 99.9
风机功率(kw)
3
3
5.5
5.5
835
8.5
11.0
清灰电机功率(kw)
0.25
0.25
0.25
0.37
0.37
0.37
0.37
风机电机型号
Y9L00-2
Y100L-2
Y232S1-2
Y132S1-2
Y132S2-2
Y132S2-2
Y169M1-2
清灰电机型号
AQ27114
AQ27114
AQ27124
AQ2-7124
AQ2-7124
AQ27124
Y801-4
A型重量kg
680
756
893
987
1103
1986
1210

 
 
 
 
 
 
 
 
主要尺寸:
 

相关产品products list

除尘布袋-布袋除尘器布袋
除尘布袋堪称袋式除尘器的心脏,除尘布袋是袋式除尘器运行过程中的关键部分,通常圆筒型滤袋垂直地悬挂在除尘器中。
DMF-T-62直通式脉冲阀-直通式电磁脉冲阀
宏大生产的DMF-T-62直通式脉冲阀阀其进出口中心为同一直线,其进气口与储气管连接、出气口与喷吹管连接,气流畅通,能提供符合要求的脉冲气流 。DMF-T-62S直通阀的特点:直通式电磁脉冲阀的构造特点是空气进出口中心线在一条直线上,脉冲阀膜片把脉冲阀分为前,直通式脉冲阀后两个气室,接通压缩空气时脉冲阀处于关闭状态,开启动作原理与直角阀相同,只是气流喷射时的流动方向。
DMF-Z-65s电磁脉冲阀-5寸直角型脉冲电磁阀
RMF-Z-65S直角式脉冲阀是2.5寸直角型脉冲电磁阀,进气口和出气口之间的夹角为90度,RMF-Z-65S直角式脉冲阀适合于储气筒和除尘器喷吹管的连接。电压可分为:AC110V/AC220V/DC24V等。
企业简介|工程实例|生产场景|公司业绩|主要客户|联系方式| 网站地图
公司名称:泊头市宏大除尘设备制造有限公司 公司地址:泊头市开发区环城东路南首1号 电话:0317-8392799 8162866 传真:0317-8392977 
手机:18931764475 网址:http://die-youxin.com 
宏大除尘设备 2014(C)版权所有 并对网站所有内容保留解释权  
网站建设:中科四方