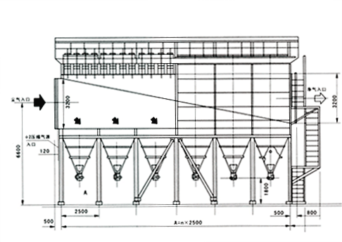
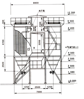
LDLM 、LDMM、LDMS型系列离线清灰脉冲袋式除尘器
简介 离线清灰解决了常规脉冲袋式除尘器存在的“粉尘再附与失控”问题,大提高了滤袋清灰效果,从而提高过滤速度,即省清灰能耗和延长滤袋寿命,是我们具有特色的专有技术产品。 本除尘器特别适用于质轻、粒细、粘性粉尘的空气净化。分大、中、小三个系列。
LDLM 、LDMM、LDMS型系列离线清灰脉冲袋式除尘器 jc聚彩